駅3分、1階、店舗事務所
new
POINT!東1-14-11ブルーム国立1階ー2室
重飲食も可
| 賃料 |
借地料 |
礼金 |
保証金 |
| 27.5万円 |
|
2ヶ月 |
10ヶ月 |
| 物件の種類 |
店舗・事務所 |
| 所在地 |
|
| 交通 |
JR中央線国立駅 徒歩3分 |
| 築年月 |
|
新築/中古 |
中古 |
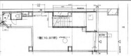
| 面積 |
36.29m² |
計測方式 |
|
| バルコニー |
m² |
向き |
|
| 建物階数 |
|
部屋階数 |
階 |
| 部屋/区画番号 |
|
総戸/区画数 |
|
| 建物構造 |
|
| 間取内容 |
|
| 駐車場 |
|
取引態様 |
|
| 引渡/入居時期 |
|
現況 |
|
| 周辺環境 |
|
| 設備・条件 |
飲食 サービス 貸事務所 有保険、償却有20% |
| 物件番号 |
|