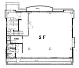
駅6分、大和ビル2階、店舗事務所
new
POINT!柴崎町3-10-23
| 賃料 |
共益費・管理費 |
借地料 |
礼金 |
| 34.1万円 |
60500円 |
|
1ヶ月 |
| 物件の種類 |
店舗・事務所 |
| 所在地 |
|
| 交通 |
JR中央線立川駅 徒歩6分 |
| 築年月 |
|
新築/中古 |
中古 |
| 面積 |
90.96m² |
計測方式 |
|
| バルコニー |
m² |
向き |
|
| 建物階数 |
|
部屋階数 |
階 |
| 部屋/区画番号 |
|
総戸/区画数 |
|
| 建物構造 |
|
| 間取内容 |
|
| 駐車場 |
|
取引態様 |
|
| 引渡/入居時期 |
|
現況 |
|
| 周辺環境 |
|
| 設備・条件 |
サービス 貸事務所 有保険、敷金200万円 |
| 物件番号 |
|
Fudousan Plugin Ver.1.9.2