東京都立川市、国分寺市、小金井市の貸店舗・貸事務所は「有限会社福井企画」にお任せ下さい。東京都立川市、国分寺市、小金井市周辺の賃貸店舗物件(貸事務所・貸店舗・倉庫賃貸・貸し工場含む)を中心として不動産売買物件も取り扱っております。貸店舗・貸事務所取り扱い範囲としては中央線の立川駅、国分寺駅、西国分寺駅、国立駅、武蔵小金井駅周辺の賃貸店舗物件となります。豊富に貸店舗・貸事務所物件を取り揃えておりますのでお気軽にお問い合わせください。
東京都立川市周辺の貸店舗・貸事務所|創業30年!福井企画
menu
ホーム
物件検索
周辺情報
会社概要
お問い合わせ
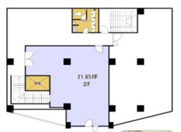
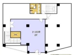
東大和市中原2丁目、中央通り角地、2階、店舗事務所
new
POINT!
仲原2丁目16-12ブランドール砂田
賃料
借地料
敷金
12万円
3ヶ月
物件の種類
店舗・事務所
所在地
交通
JR中央線立川駅 徒歩50分
築年月
新築/中古
中古
面積
72.00m²
計測方式
バルコニー
m²
向き
建物階数
部屋階数
階
部屋/区画番号
総戸/区画数
建物構造
間取内容
駐車場
取引態様
引渡/入居時期
現況
周辺環境
設備・条件
サービス
貸事務所
有保険、
物件番号
お問い合わせ
-
ツィートする
0
Facebook
0
Google Plus
0
はてなブックマークに追加
LINEで送る
会社概要
よくある質問
スタッフ紹介
福井企画ブログ
プライバシーポリシー
お問い合わせ
物件新着
西1-1-34ジュリアンハウス、102号室、店舗事務所
やすらぎ通り1階、居酒屋居抜き、
駅7分、TKTビル7階、店舗事務所
東大和市中原2丁目、中央通り角地、2階、店舗事務所
駅3分、1階、貸店舗
Fudousan Plugin Ver.1.9.2